這是我後來修正的一部份圖
我吹牛的和屋主說 我希望自的設計雖然使用系統櫃
但是我不想別人一樣 一看就是系統櫃
不然就是一堆櫃子沒有收頭收尾
雖然收納可以放很多東西 不過沒有美美的感覺
而屋主也看了我之前瑞光路的照片
因此 就這樣吧
我們希望有些時尚 有些奢華感
哈 系統櫃能表現這樣嗎
管它的就 試試吧










這是我後來修正的一部份圖
我吹牛的和屋主說 我希望自的設計雖然使用系統櫃
但是我不想別人一樣 一看就是系統櫃
不然就是一堆櫃子沒有收頭收尾
雖然收納可以放很多東西 不過沒有美美的感覺
而屋主也看了我之前瑞光路的照片
因此 就這樣吧
我們希望有些時尚 有些奢華感
哈 系統櫃能表現這樣嗎
管它的就 試試吧










雖然我們木工已經工作很多天了
不過天花板的部分一直無法收尾
原因是冷氣廠商不準時配合施工
其中冷氣銅管不願意埋入牆面
冷氣排水高度也不願意降低
屋主今天只好請假親自壓陣
話說這廠商是屋主前次房子裝修的廠商
之前屋主自己畫圖自己發包 冷氣也是其中之一
因此在這次裝修除了冷氣之外由我們統一施工
或許是之前屋主裝修時較好溝通 因此順著廠商的意思施工
不知道是我設計太難或是我太賤 我就是無法在牆面包一坨的木板
因此強力建議屋主要求冷氣廠商配合我的要求
雖然冷氣廠商一拖再延時來施工
反正我就是不管 要他們把銅管埋下去冷氣排水管降下去
現在的房子在新莊 動不動就是40萬起跳
還在跟我說什麼標準施工 說什麼別人多這樣做
真是的





這個工地是我生病後第一個開始的工作
當時屋留言給我 可不可以工作
我跟她說明有困難 除非她可以等我一些時間
後來她等我 也因此我才有機會為他們服務
就畫圖而言 虛擬實境對我和業主就是一種溝通的工具
因此我不會畫的很到位或是精準
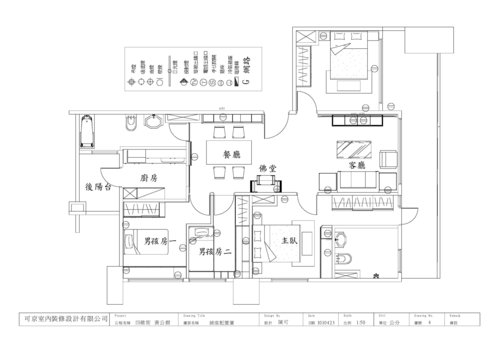
這案子 屋主的需求是系統櫃
屋主之前裝修也是使用系統櫃
在使用不錯的經驗下新家就延續系統櫃的施工
施工和設計圖 部份圖已經修改 因此看的人就不用太認真
本案樓板實際高度只有247公分左右 因此無法再做天花板
我不喜歡做系統櫃 就是丟或塞一些櫃子進去而已
並且在這裡電線和冷氣的銅管也並需妥善處理
如何讓以上的東西不見 空間表現美美的 是我設計努力的重點








當我們的木工工班從中和進入內湖後
不久也又要離開這裡去新莊的工地
人生嘛 就是這樣沒有不散的宴席
不過話說人生無常 不代表可以隨便
每一次的人事物都有它們的意義和要學習成長的使命
隨著設計和施工經驗的累積也是一直不斷的須要成長
從工作中保留好的 而錯誤也提供了另一種可能
這工地可雖然木作將結束
不過油漆確已經先進場將矽酸鈣板的接縫抓ab膠有好幾天了
一般我們在油漆ab膠施工的部份都會重覆二次施工 並且提早約一星期以上
原因在於世上流動性的物質在乾燥的過程都會縮收
並且須要一定的時間才能穩定不變 也因此ab膠施工我們都會提早
而工作中需要提早的事有很多
比如燈具的孔要提早挖 儘量日後不知道挖到天花板的主角料
避免油漆做好又弄髒
比如木作的門片也要提早做 讓它定型
這一切的做法也多事工作經驗做累積的
或有人說 我為什麼一定要這樣做
我想 這也沒有一定
不過 又一些事就是失之毫釐差之千里
路遙自知馬力 日久就會看到差別在那裡了








中和捷運一品的工程開始進入粗清
大女兒一心今年剛好參加基測
不管成績怎樣 我覺得學習工作是遠比學校成績重要
因此我這一個無情的父親就把她安排到工地工作
當人一生要學的要成長的是那麼的多
雖然每個人都不是唯一的
不過每個人也可以是做特別的
因此我希望她可以有各種學習和成長的機會
而以下是這個工地局部的設計圖 一起丟上來













當颱風一遠離後 我們三個工地的進度就開始大風吹了
其中 中和捷運一品的油漆已經結束
開始進入最後收尾 為了能配合我的時間
所以冷氣 大理石安裝及水電燈具等安裝多都同一天進場
當然這裡的油漆師傅就轉移陣地到內湖了
而內湖的木工也先一半到新莊的鄉林淳風的工地
進入木工的現場 因為很忙 所以我又有一段時間未上來更新
原來我想從內湖的拆除 泥作 木工 一段落的用環境的表達方式寫施工
不過我又對自己黃牛了





